钢筋加工、制作场地
钢筋加工、制作场地
钢筋堆料场
筏板钢筋
灌注桩钢筋
筏板插筋
地下室外墙插筋前先进行外架搭设,并设支撑构件,钢筋上口统一标高固定;钢筋定位准确,排列整齐,便于现场实际操作。
地下室外墙插筋前先进行外架搭设,并设支撑构件,钢筋上口统一标高固定;钢筋定位准确,排列整齐,便于现场实际操作。
板面钢筋施工前先弹线
保护层控制
钢筋间距控制
工程实景
弧形板面钢筋弧度圆顺,间距均匀,绑扎整齐规范
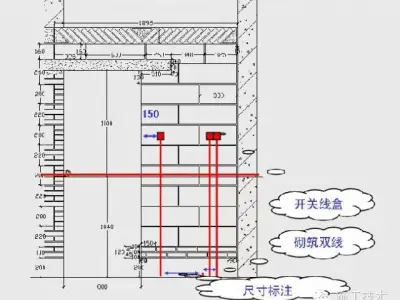
剪力墙钢筋、电气预埋安装样板
剪力墙钢筋、电气预埋安装样板
根据样板进行钢筋和安装预埋交底
剪力墙钢筋绑扎效果
采用环形控制定位箍保证剪力墙竖向钢筋位置
钢筋定位(梯子筋)











