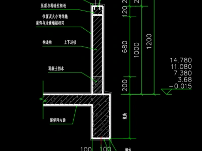
图纸名称:女儿墙cad大样图丨cad做法
cad版本:cad2018
图纸大样
下载地址
本文附件下载地址
验证码获取教程(如您不知如何操作,)
声明:建筑一生网提供的所有资料均来自互联网下载,纯属学习交流。如侵犯您的龙8long8手机登录的版权请联系龙8long8手机登录,我们会尽快整改。请网友下载后24小时内删除!
long8官方网站头号玩家的联系方式:发送邮件至
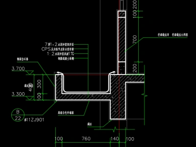
图纸名称:女儿墙cad大样图丨cad做法
cad版本:cad2018
本文附件下载地址
验证码获取教程(如您不知如何操作,)
声明:建筑一生网提供的所有资料均来自互联网下载,纯属学习交流。如侵犯您的龙8long8手机登录的版权请联系龙8long8手机登录,我们会尽快整改。请网友下载后24小时内删除!
long8官方网站头号玩家的联系方式:发送邮件至

阳台/走廊晾衣杆cad大样图丨cad做法
2022-08-21阅读(249)

楼梯间栏杆cad大样图丨cad做法
2022-08-21阅读(295)

屋顶检修孔cad大样图丨cad做法
2022-08-21阅读(312)

屋顶挑檐cad大样图丨cad做法
2022-08-21阅读(440)

天沟及天沟伸缩缝cad大样图丨cad做法
2022-08-21阅读(432)

室内消防栓安装cad大样图丨cad做法
2022-08-21阅读(394)

走廊(混凝土)栏板cad大样图丨cad做法
2022-08-21阅读(405)

钢筋混凝土雨棚cad大样图丨cad做法
2022-08-21阅读(523)

散水、台阶、坡道、明沟cad大样图丨cad做法
2022-08-07阅读(567)

学生宿舍卫生间及其细部构造大样图
2022-07-24阅读(445)
本站公众号

建工计算器
